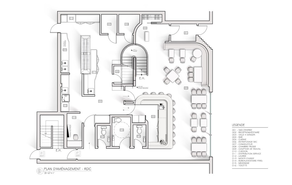
Le 30’s restaurant 

L’Art déco s’est affirmé comme l’un des styles les plus glamour et élégants des années 20 et 30, et ce statut perdure jusqu’à nos jours en incarnant toujours l’élégance et la sophistication. Notre désir est de créer un lieu avant-gardiste qui éveille les sens de tous les fins gourmets, dans une ambiance à la fois légère et soignée. Nous souhaitons capturer l’essence de l’Art Déco à travers ses formes et ses volumes, en le réinterprétant de manière contemporaine. Une attention particulière a été portée au plafond, dont la volumétrie a été conçue pour absorber le son. Nous avons ajouté des bandes lumineuses et utilisé des films PVC tendus d’Inove pour offrir une finition supérieure.

About This Project

L’Art déco s’est affirmé comme l’un des styles les plus glamour et élégants des années 20 et 30, et ce statut perdure jusqu’à nos jours en incarnant toujours l’élégance et la sophistication. Notre désir est de créer un lieu avant-gardiste qui éveille les sens de tous les fins gourmets, dans une ambiance à la fois légère et soignée. Nous souhaitons capturer l’essence de l’Art Déco à travers ses formes et ses volumes, en le réinterprétant de manière contemporaine. Une attention particulière a été portée au plafond, dont la volumétrie a été conçue pour absorber le son. Nous avons ajouté des bandes lumineuses et utilisé des films PVC tendus d’Inove pour offrir une finition supérieure.